Un sistema di impianti che si articola generando spazi e funzioni
A network of systems that runs in space generating areas and functions
Una ‘avenida’ (strada) che mette in connessione la città ed il parco e allo stesso tempo scandisce la stratificazione dei layer funzionali che suddividono lo spazio.
A ‘avenida’ (road) that connects the city and the park and at the same time marks the stratification of the functional layers that divide the space.
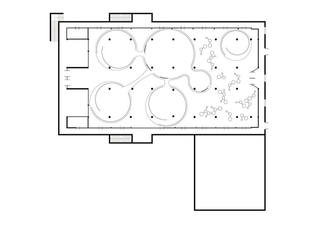
Forme organiche che sembrano scindersi in elementi sempre più piccoli man mano che si passa dal lab dove nascono le idee al market dove i prodotti finiti vengono messi in mostra.
Organic shapes that seem to break down into smaller elements going from lab to market where products are on display.
L’architettura del Qt8 si trasforma dal suo interno e assume forme diverse per adattarsi ai diversi concept di porgetto.
The architecture of the QT8 is transformed from the inside fitting different design concepts.
